With new forms of collective housing, the home has become a combination of individual and shared spaces that enrich neighbourhoods and give it more purpose.

Collective housing introduce scales challenging for existing settlements

In these conditions, where does a home actually begin?

In these conditions, where does a home actually begin?
Mijn huis mijn stad

The project in Nevele has a spatial set-up that enables different relationships. The basic room consists of two parts: one is private, while the other can easily be opened up to an enlarged corridor that serves as an internal meeting space. The enhanced corridor is connected to the outside in different ways, giving the building an open character and the plot itself a more public feel. The slow transition between these spaces allows for different forms of interaction with a gradually larger group of people, from intimate to public.

The large entrance halls of the Falconpoort project allow for more functions than merely entering your property. Acting as a shared space to be appropriated by the residents, they become part of their living environment. Large gates regulate the use of the entrance hall, activating the stairs, the courtyard, the gardens, the building and even the neighbourhood.

A house neither stops nor begins at its front door: it can extend towards the outside. In that sense, the surrounding outside space can be more than just a green zone. In the Regatta project, a large care facility has been reshaped, its interior yard being moved to the edge of the plot, thereby becoming a shared space within the neighbourhood.

The shared gardens amidst the 52 dwellings on the Dony site are part of the occupants' home. Through urban agriculture, playgrounds and common gardens, inhabitants can engage and invest in it. Balconies, French windows and open stairs shape the intermediate space and enhance social contact with the neighbours and the neighbourhood. The common space offers a green public passage to the city, extending the existing pedestrian network. Relations to new types of urban interiors make us understand that we should not see the home as our property.

When do smaller private spaces become attractive?

When do smaller private spaces become attractive?

Small spaces to live in can still be generous. The terraces in the Bpost project are a third room next to the kitchen and living room. The terrace with its inclined contour takes part in the interior space, resulting in a large usable outside space. Storage space on the balcony makes the inside space more efficient. Extended views render a panoramic relationship with the landscape. This space in-between belongs to the city as well as to the home.

A new structure in front of an existing social-housing building, Peterbos, offers affordable extra space. This seemingly generic façade shelters generous additional living space for 80 apartments. The winter garden serves as a transition room that reinforces the relationship between inside and outside. A balcony at the front enhances panoramic views. Acting as a double skin, this buffer reduces energy consumption and acoustic nuisances.

A new affordable façade as leverage for extended use Peterbos

How to design buildings and landscapes together?

How to design buildings and landscapes together?

Rendering dense urban areas attractive requires spaces that possess a multitude of qualities. While transforming the Dony site in Tienen, we envisioned the houses and apartments as a prolongation of the central garden. Circulation through open staircases enhances the relationship to the garden, which becomes the lobby of your house. Balconies and terraces are intermediate spaces, filtering more private areas from the shared communal garden. Although small in scale, this green urban interior is a major addition to the urban ecosystem. For both the new occupants and the neighbourhood, this densification offers urban qualities that compete with suburban living.

With the demand for a densification project of 90 social and middle-class houses, we aim to preserve and renew the existing qualities of the garden city and to reinterpret a historical neighbourhood by designing architecture and landscape that go hand in hand.
New urban polarities, a hierarchy of alternative ways of crossing the district and a more wild and active landscape with opportunity gardens close to your home are added to this neighbourhood. The new dwellings have been designed with outside staircases & double facing terraces. Kitchens and living spaces capturing multiple orientations of this diverse and productive landscape of whom you are living in the middle of it.

Building hospitable urban environments is key to welcoming new people as well as improving the living conditions for the current residents. Introducing a new development in the Homborch project requires dialogue with current occupants and administrations. We guided different stakeholders in a participation process to find common ground for the densification of the existing garden city of Homborch in Ukkel. The project also provides new passages, public space, and shared community facilities which the neighbourhood can appropriate. New uses to the existing landscape are introduced, which everyone can benefit from, while newcomers find a healthy and affordable, collaborative garden city to live in.

What are the shifting models for living together apart?

What are the shifting models for living together apart?

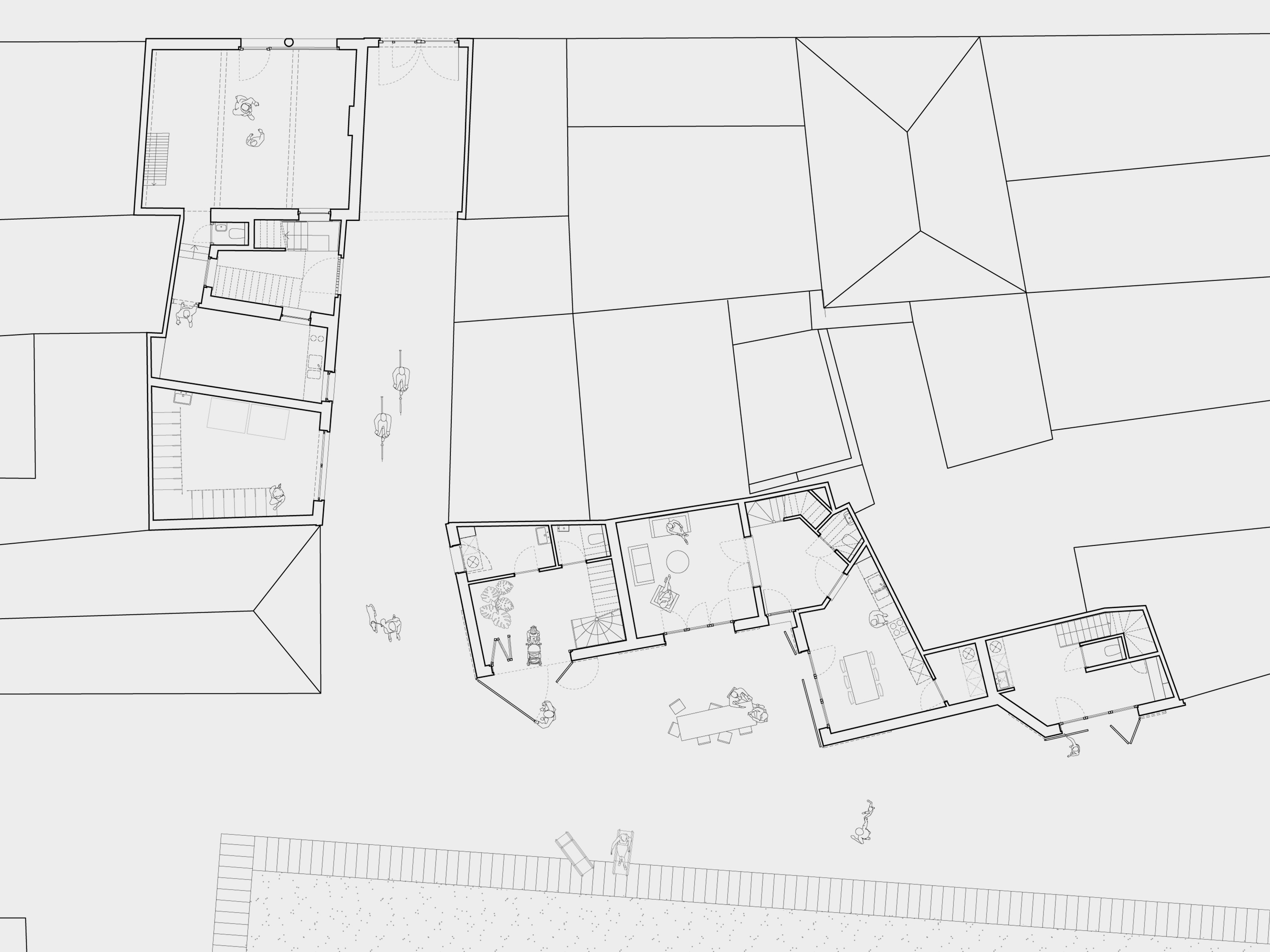
To allow urban densification, spaces need to incubate other functions through time. Today this room in the city connects a cluster composed of a garden, a vestibule towards the street, a family house, a garden house, and a student house next door. Defining the private and public city fabric as spatial atmospheres rather than with different function uses, accesses and passages are possible, providing opportunities for programming through time.

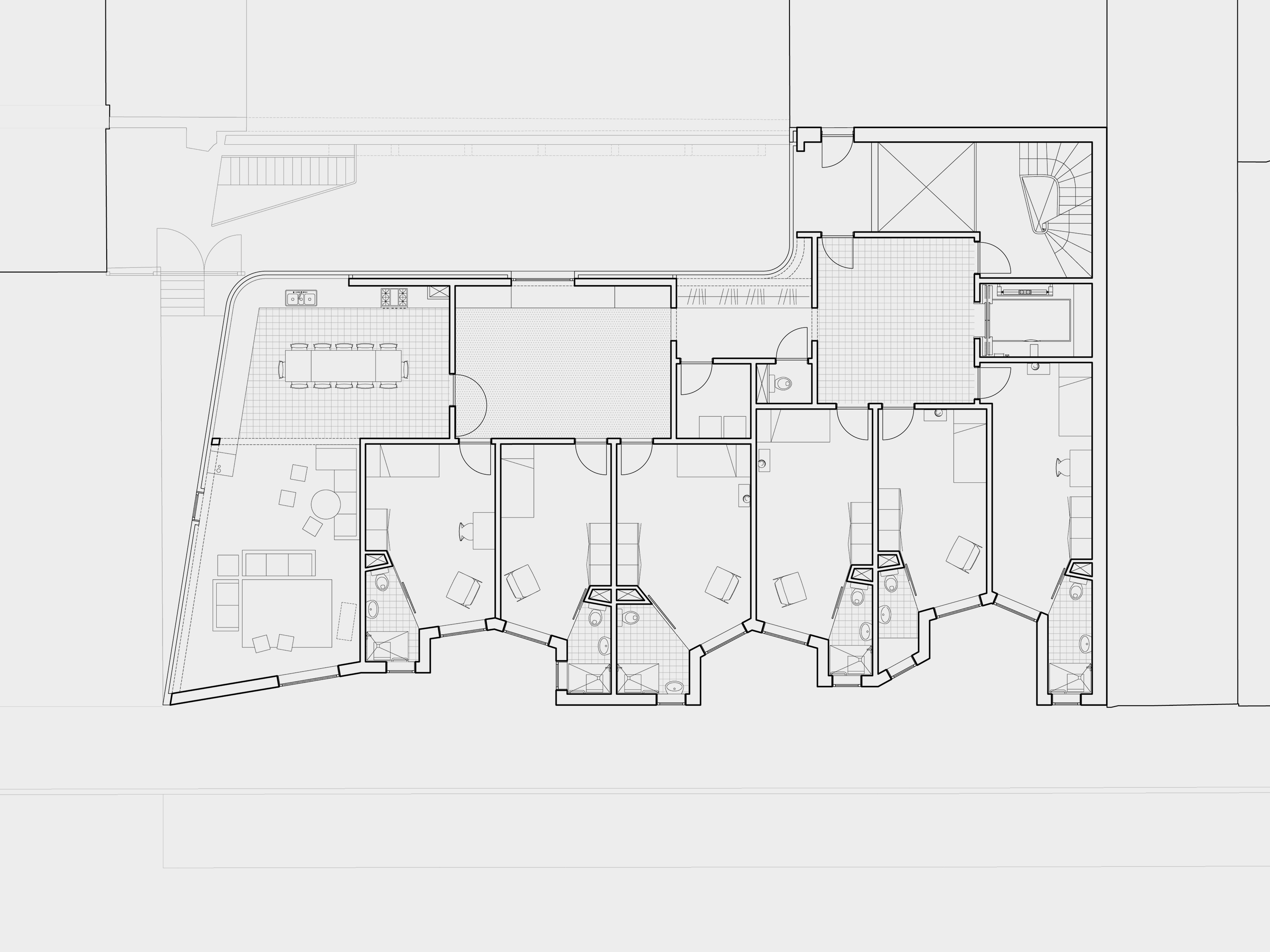
Through the alternative composition in the plan, we can shape the way we live together. Enlarged shared spaces allow for common use and interaction. Circulation is designed as a place to sit, meet and connect – designed as a house. The daily life of the inhabitants takes place in the shared kitchen and living room. Introducing the bathrooms towards the façades allows for natural light and ventilation. As such, a direct relation from the common space to the private studios is enhanced. Although today De Lork is a care home for assisted living, we could imagine new ways of living for regular families with increased social connection.

5/7